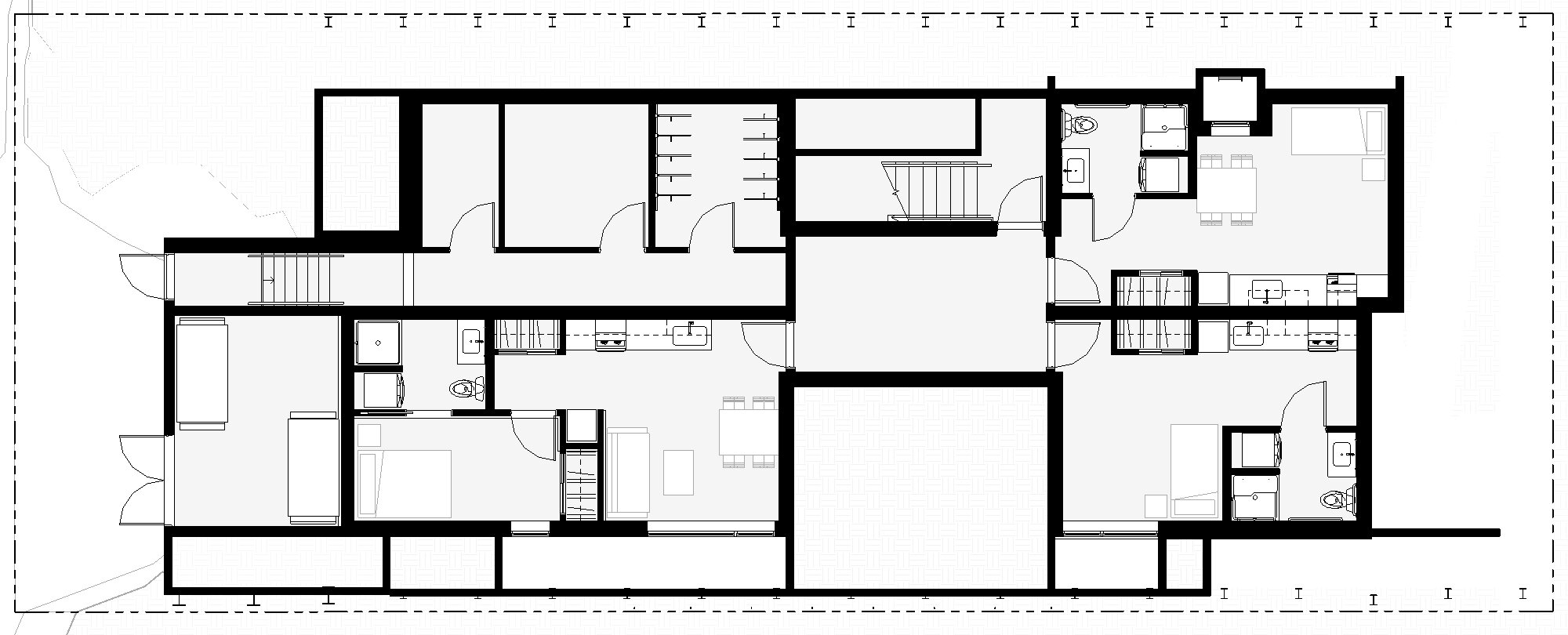
5521 15th Ave NE Apartments

5521 15TH AVE NE - APARTMENTs

SEATTLE, WA 98105

  • Lot Size: 4,126 SF

  • Gross SF: 9,769 SF

  • Units: 18

  • Average Unit Size: 138 SF

  • SF of Land per Unit: 229 SF

  • Gross SF of Building per Unit: 543 SF

A 4-story apartment building containing 18 residential units; a mix of unit types from SEDUs to 2-bedroom units are provided. The project is located within the University District Northwest Urban Center Village. The building provides a contemporary interpretation of Seattle’s historic wood-sided residences and establishes a new development precedent for its immediate context. It is an affordable infill project in a central neighborhood with access to plentiful services and excellent transportation. The apartment building provides high-quality, accessible housing with excellent daylight, views, and connectivity to outdoor amenities.